Двокімнатна квартира 58.1м2 ЖК Rybalsky Рибальський з терасою. (№ 213-268-489)
Ціна: 127 000 $

Адреса: Набережно-Рибальська дорога, Київ, Оболонський
Характеристики
| Ціна: | 127 000 $ |
|---|---|
| № об'єкта: | 213-268-489 |
| Кімнат: | 2 |
| Поверх: | 7 / 8 |
| Площа: | 58 / - / 15 м2 |
Опис
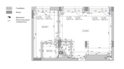
, Продамо видову двокімнатну квартиру з терасою в ЖК Rybalsky (Рибальський). 5-ий будинок, здано в експлуатацію, можна заходити на ремонт! Всього 58.1 м2. На плані указано проектну квадратуру - 60.54 м2. По факту побудовано - 58.1 м2. При набутті права власності забудовник має компенсувати у грошовому еквіваленті 2.44 м2. Велика тераса майже 17м2! з видом на Подільсько-Воскресенський міст, Дніпро, Поділ та Андріївську церкву. Два виходи на терасу. Вітражні вікна. Два окремих санвузла. 7-ий поверх (всього - 8). Всього 4-ти квартири на поверсі. Підземний паркінгu002Fукриття (у власності є два паркомісця на першому рівні, можна обговорювати покупку, всього лише 122 місць на весь будинок). Спуск в паркінг на ліфті. Найменший будинок в комплексі. Друга частина будинку - школа з укриттям. В комплексі замкнута екосистема з розвинутою інфраструктурою та охороною. Є декілька продуктових магазинів (зокрема Ашан Pickup Point, Коло), кафе, галерея, салон краси. При виході з підїзду - величезний фітнес клуб '5 Елемент' з басейном і тенісними кортами. Найближчим часом має бути канал з виходом на набережну. Продаємо по договору переуступки










