Продається стильна 3-кімнатна квартира біля метро Виставковий центр (№ 213-271-192)
Ціна: 117 800 $

Адреса: Голосіївський просп. (проспект 40-річчя Жовтня), 126к3, Київ, Голосіївський
Характеристики
| Ціна: | 117 800 $ |
|---|---|
| № об'єкта: | 213-271-192 |
| Кімнат: | 3 |
| Поверх: | 5 / 5 |
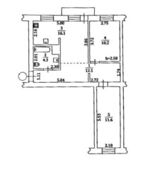
| Площа: | 56 / - / 7 м2 |
Опис
Продається стильна 3-кімнатна квартира з дизайнерським ремонтом біля метро Виставковий центр Адреса: Голосіївський проспект, 126к3, Київ Поверх: 5u002F5 (без ліфта) Пропонується до продажу світла та простора квартира площею 56,4 м2 у престижному та зеленому Голосіївському районі. Тут продумано все для вашого комфорту — від сучасного ремонту до систем безпеки. Ви зможете одразу заїхати й насолоджуватися життям без додаткових витрат. Інженерія: •tПовна заміна труб опалення та водопостачання; •tНові батареї; •tСучасна електропроводка з можливістю збільшення потужності та підключення резервного живлення. Планування та комфорт: •tДвостороння квартира з продуманим зонуванням; •t2 окремі спальні + простора кухня-вітальня; •tГардероб, суміщений санвузол, засклений балкон; •tТепла підлога (кухня, ванна), Wi-Fi термостат «розумний дім»; •tВікна Rehau 70 з чудовою шумо- та теплоізоляцією; •tДодаткова звукоізоляція від сусідів; •tФільтр очищення води. Безпека: •tСигналізація Ajax із підключенням до охорони Sheriff; •tВідеокамера в квартирі (огляд вхідних дверей); •tВідеоспостереження навколо під’їзду. Дизайн: •tСучасний ремонт у світлих відтінках, створює атмосферу простору й затишку; •tКвартира повністю готова до життя — заходь і живи. Локація: •t5 хвилин пішки до метро «Виставковий центр» — швидкий виїзд у центр; •tПарк ВДНГ через дорогу — ідеальне місце для прогулянок та спорту; •tУ кроковій доступності: супермаркети, кафе, ресторани, школи, дитячі садки та спорткомплекси Ця квартира підійде тим, хто цінує сучасний стиль, комфорт і безпеку, але хоче жити серед зелені та тиші. Відмінний варіант для сім’ї або для тих, хто мріє про затишне житло з дизайнерським ремонтом у Голосіївському районі..

















